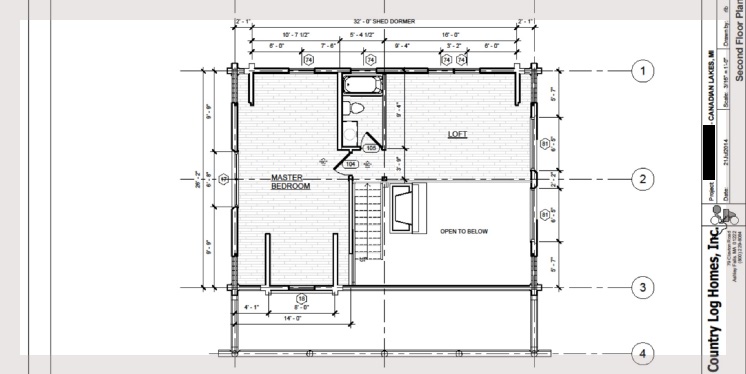
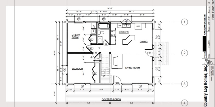
Canadian Lakes MI
This log home is a complete design and build of our Treetop model. House is being built in the 2014 fall and 2015 winter. Hoping to wrap it up in the spring. The project completion time will be about 6 months. The logs are round style with a heavy timber roof structure. Windsor windows and doors were used with bronze clad aluminum exterior and wood interior. ISO foam panels make up a R38 roof with 2x6 T&G as the base for the roof. A real wood fireplace was installed with a cultured stone finish. Other features installed was 90% efficiency furnace and KraftMaid Cabinetry.
Country Log Homes is the log supplier and many of the other building materials will be supplied by local lumber yards and specialty sawmills.
See more projects









